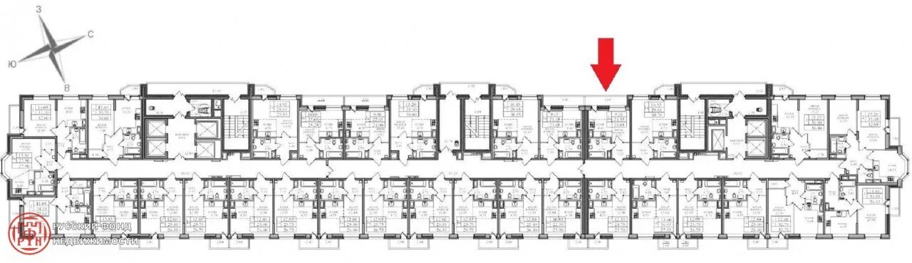
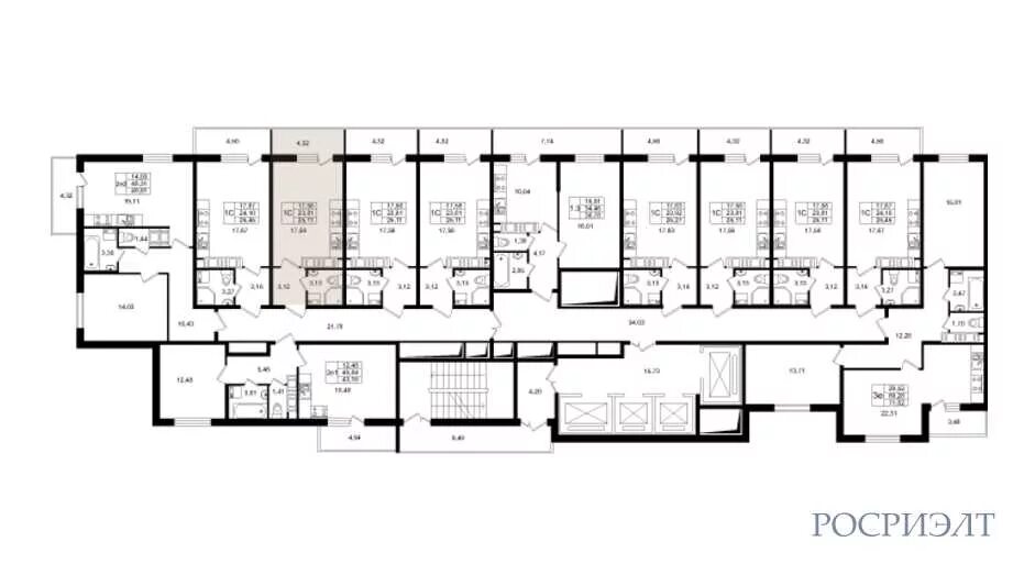
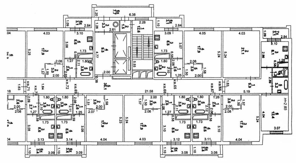
2 2 14 корпус б