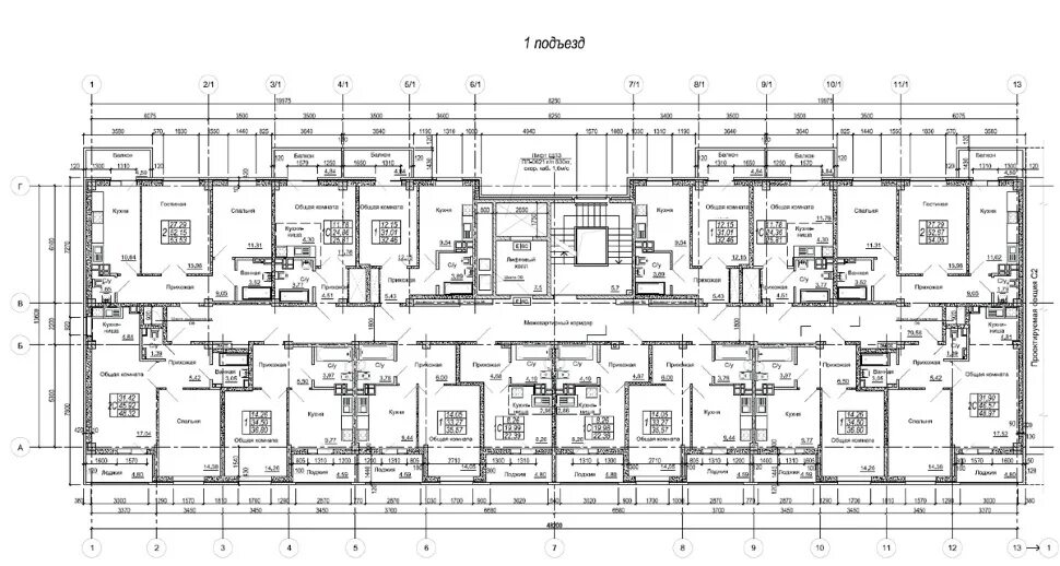
1 подъезд 9 этаж